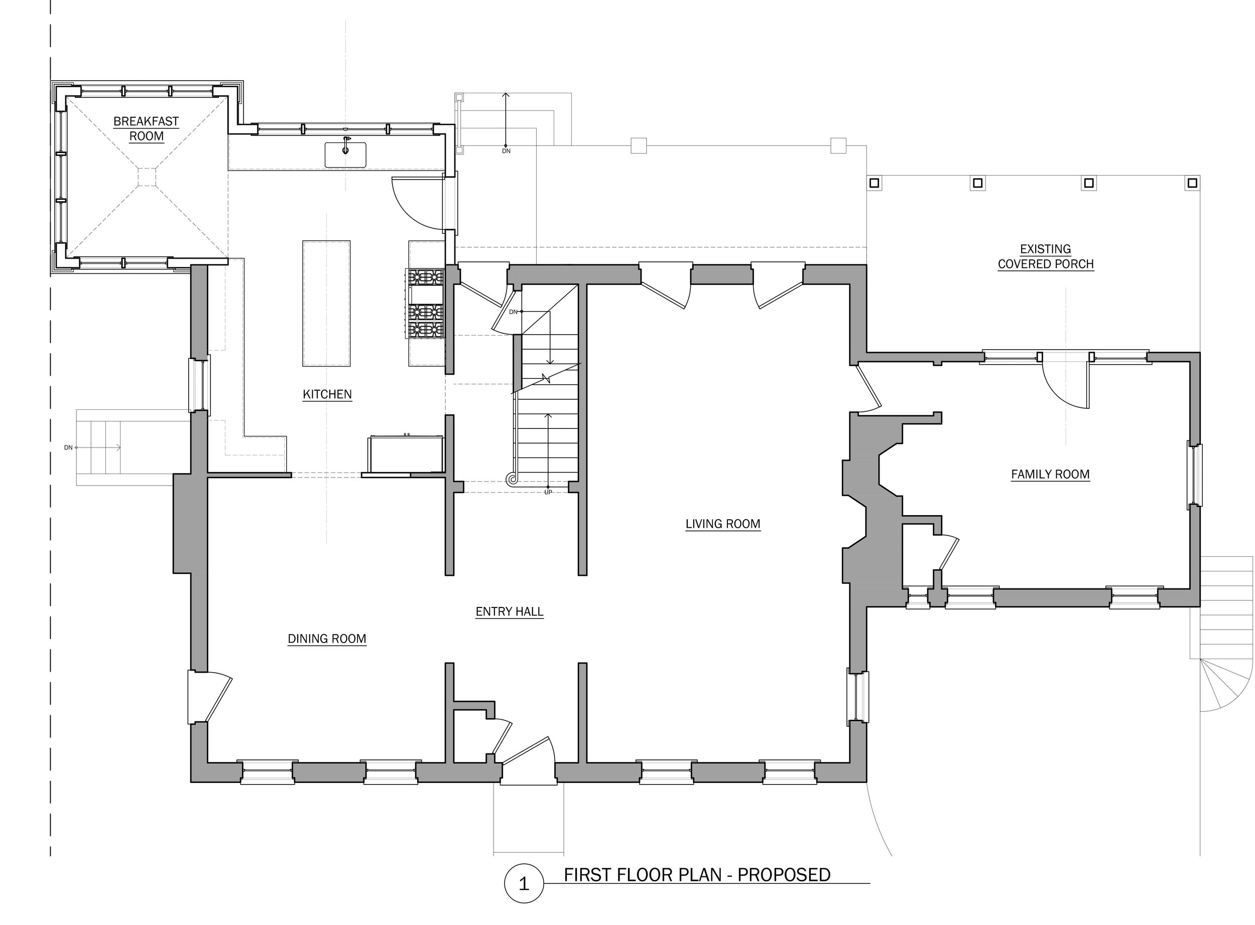
First floor renovation
Clean & Classic
This warm and welcoming renovation transformed a small, outdated kitchen into a spacious hub for a busy family with teens and dogs. The modest rear addition created room for multi-functional kitchen and bright breakfast nook, while improved access to an underused porch brings in more light, views, and indoor-outdoor living into the family’s daily routine.
Status
Completed 2019
SCOPE
one story ADDITION
LOCATION
washington, dc
the challenge
Cramped Kitchen, Neglected Porch
The original kitchen was small, outdated, and couldn’t keep pace with the rhythms of a busy household. The family loves to cook and spend time together, but the space offered limited room for gathering, prepping, or doing homework. Meanwhile, the covered back porch was underused and lacked meaningful connection to the interior.
the solution
Small Expansion, Big Impact
By extending the footprint just a few feet, we were able to create a highly functional kitchen with multiple prep zones, a large central island, and an adjoining glass breakfast room where kids can do homework. Warm materials like white oak herringbone flooring, natural marble counters, and oversized windows balance elegance with approachability—perfect for everyday life.
the kitchen
“Our kitchen far exceeded all expectations. It is gorgeous and we could not be happier.…”
“One of our primary concerns was how the new kitchen and addition would integrate with the rest of our house. Erin was able to transform our tiny, dated kitchen into a modern masterpiece that seamlessly fit with the aesthetic of our home. In the end, our kitchen far exceeded all expectations. It is gorgeous and we could not be happier.”
Josh T. + David S.
Washington, DC
Bringing the Porch Back to Life
Though the covered porch was already in place, its small French doors limited access and views. A new retractable glass door system brings in natural light, blurs the line between indoors and out, and transforms the porch into a true extension of the home—not just a pass-through.
A look at where we began—original conditions, site constraints, and early ideas that shaped the final design.


